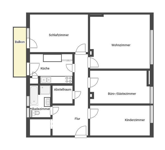
Obgleich Ihr neues Zuhause im Zentrum liegt, ist es ein Rückzugsort vom pulsierenden Stadtleben. Die helle und Lichtdurchflutete geräumige möblierte 4-Zimmer-Wohnung liegt im 1. Obergeschoss links des Mehrfamilienhauses mit insgesamt 6. Etagen. Über den einladenden Flur gelangen Sie zu den einzelnen Räumen. Von links nach rechts beginnend folgt das Tageslicht Badezimmer, der Abstellraum, die Küche mit Einbauküche, das Schlafzimmer, das Wohn-Esszimmer, Hier angrenzend das Arbeits-/Gästezimmer sowie das Kinderzimmer. Vom Schlafzimmer und der Küche aus haben Sie die Möglichkeit den Balkon zu betreten, der aufgrund der südlichen Ausrichtung zum Sonnen und Verweilen einlädt. Die Fenster in der Küche und im Schlafzimmer sind mit Rollläden ausgestattet, aufgrund dessen es möglich ist die Räume abzudunkeln. Der Laminatboden in Holz-Optik in den Räumen lädt Sie ein barfuß durch die Wohnung zu gehen. Das Tageslicht-Badezimmer ist charmant gefliest und sowohl mit einer Wanne, als auch mit einer Dusche ausgestattet. Die auf den Aufnahmen dargestellten Einrichtungsgegenstände runden das Angebot ab.






























