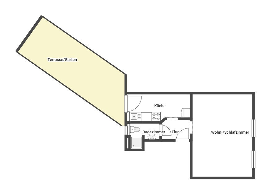
Das hier beschriebene charmante City-Apartment mit kleinem Garten befindet sich in einem sehr gepflegten Bürgerhaus im Herzen von Neuss, welches mit einem historischen Treppengiebel versehen ist und sich im Erdgeschoss des Hauses befindet. Über die Diele gelangen Sie zur linken Hand in das Badezimmer, welches mit einem Fenster und einer Dusche ausgestattet ist, sowie mit kleinformatigen hellen Wandfliesen und Bodenfliesen. Die Keramik-Ausstattung, wie Duschtasse, WC und Waschtisch, sind in Weiß gehalten. Hier angrenzend befindet sich die Küche, welche mit kleinformatigen beigefarbenen Wandfliesen und einem buchefarbenen Laminatboden ausgestattet ist. Der hier angrenzende kleine Garten mit seiner Terrasse ist über die Küche zu betreten. Zur rechten Hand befindet sich das Wohn-/Schlafzimmer, welches mit buchefarbenen Laminatboden ausgestattet und über zwei Fenster verfügt. Die Wände in den Räumen sind mit einer Raufasertapete versehen und hell gehalten ebenso die Zimmerabschlusstüren sowie die Fenster. Dieses Apartment ist ideal für eine Person, die gerne alle Vorzüge eines zentrumnahen Wohnens zu schätzen weiß und Freude an einem kleinen Garten hat.
