Attraktive Einzelhandelsfläche in bester Innenstadtlage von Neuss
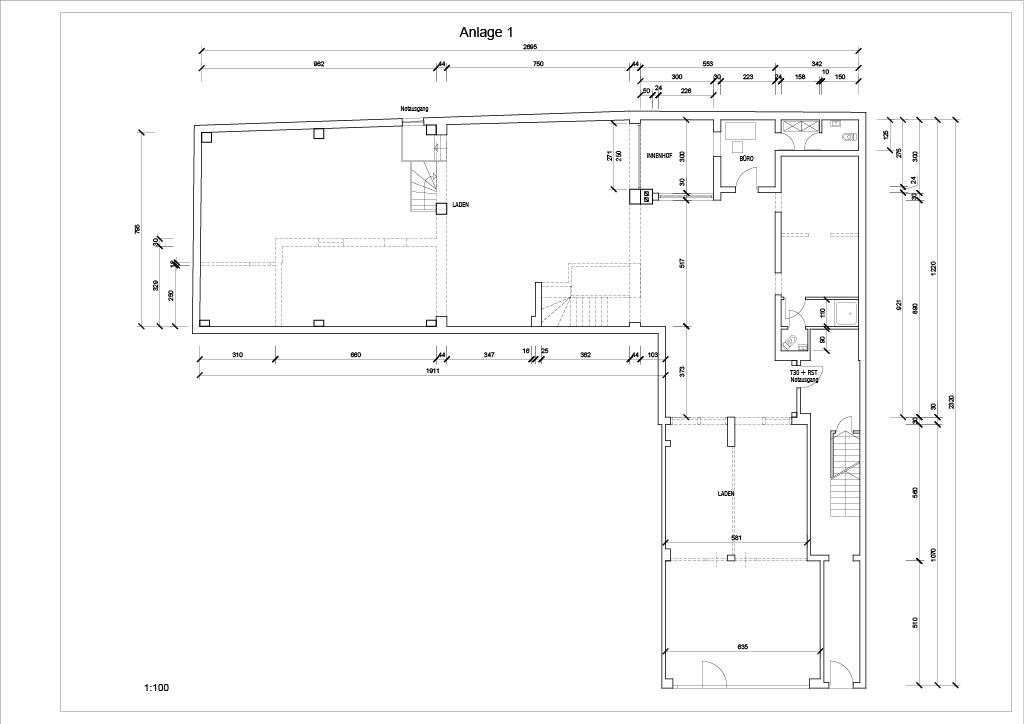
In zentraler Lage der Neusser Innenstadt bieten wir eine großzügige Einzelhandelsfläche mit ca. 305 m² in der Neustraße 10, 41460 Neuss an. Die Neustraße zählt zu den lebendigsten und frequentiertesten Einkaufsstraßen der Stadt und bietet ideale Voraussetzungen für eine erfolgreiche Geschäftstätigkeit.
Das im Jahr 1992 errichtete Gebäude verfügt über zwei Etagen. Die angebotene Verkaufsfläche befindet sich vollständig auf Ebene 0 und ist barrierefrei zugänglich. Die Beheizung erfolgt über eine Zentralheizung. Der Zustand der Fläche kann nach Absprache individuell angepasst werden.
Die hellen, großzügig geschnittenen Verkaufsräume lassen sich flexibel gestalten und bieten vielseitige Nutzungsmöglichkeiten – ideal für Einzelhandel, Showroom oder Dienstleistungskonzepte. Ein besonderes Highlight sind die großen Schaufensterfronten, die eine optimale Warenpräsentation sowie eine hervorragende Sichtbarkeit und Werbewirkung gewährleisten.
Ausstattung & Highlights
• Ca. 305 m² Verkaufsfläche
• Baujahr 1992
• Verkaufsfläche auf Ebene 0
• Barrierefreier Zugang
• Großzügige Schaufensterfronten
• Zentralheizung
• Flexible Grundrissgestaltung
• Vielfältige Nutzungsmöglichkeiten
• Gute ÖPNV-Anbindung
• Zahlreiche Parkmöglichkeiten in direkter Umgebung
Bodenbeläge
Die Immobilie ist funktional und pflegeleicht ausgestattet:
• Fliesen in WCs und Küche
• PVC-Boden in den übrigen Räumen
Beide Bodenbeläge sind strapazierfähig, leicht zu reinigen und bestens für den täglichen Geschäftsbetrieb geeignet. Die Kombination sorgt für eine harmonische und durchgängige Optik.
Lage
Die zentrale Innenstadtlage garantiert eine hohe Kundenfrequenz. Öffentliche Verkehrsmittel sowie Parkmöglichkeiten befinden sich in unmittelbarer Nähe und sorgen für eine ausgezeichnete Erreichbarkeit für Kunden und Mitarbeiter.
Fazit
Eine attraktive Gewerbefläche mit großem Potenzial in bester, hoch frequentierter Innenstadtlage von Neuss – ideal für Einzelhandel oder repräsentative Nutzungskonzepte.

























