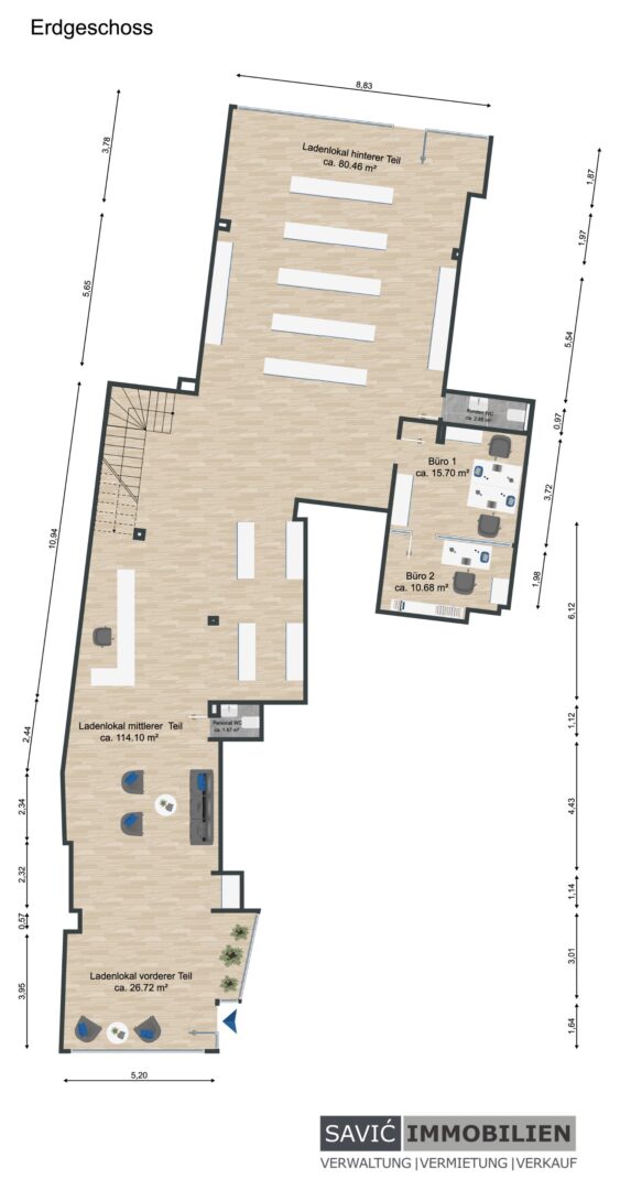
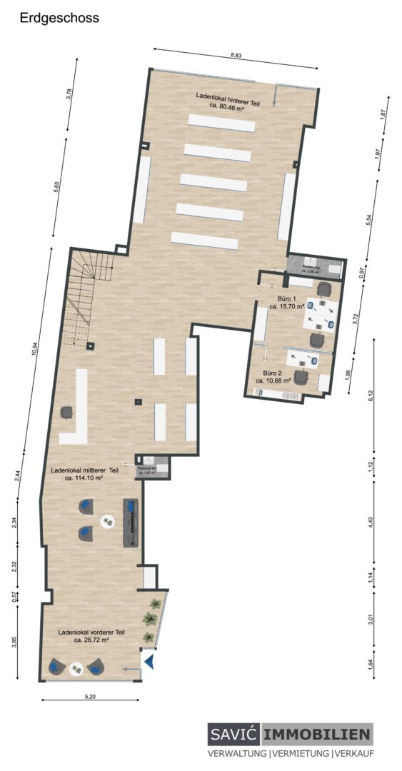
Dieses exklusive Ladenlokal befindet sich in einer attraktiven Innenstadtlage von Neuss und bietet zwei separate Eingänge mit großzügigen Schaufenstern:
•Klarissenstraße 10–13: Schaufensterbreite 8,17 m
•Zollstraße 9: zwei Schaufenster mit 4,58 m und 4,52 m
Die Gesamtfläche von ca. 221,28 m² Ladenlokal eignet sich ideal für Einzelhandel, Showrooms oder Dienstleistungsangebote. Zusätzlich stehen ein Keller/Lager von ca. 100,37 m², zwei Büroräume von ca. 25,78 m²und zwei WC-Anlagen für Mitarbeiter und Kunden zur Verfügung.
Das Objekt wurde zuletzt als Sanitärhandel betrieben. Im Ladenlokal sind noch Ausstellungsstücke, Waren und Ersatzteile vorhanden. Der künftige Mieter kann den vorhandenen Bestand gegen Abstand übernehmen, wodurch ein sofortiger Start ohne zusätzliche Investitionen möglich ist. Optional kann an dieser Stelle weiterhin ein Sanitärgeschäft betrieben werden.
Mietkonditionen:
•Kaltmiete: 5.800,00 € / Monat
•Betriebskosten: 600,00 € / Monat
•Zzgl. 19 % MwSt.
•Heizung nach Verbrauch
•Provisionsfrei für den Mieter
•Bezug: nach Vereinbarung
•Gastronomie ist nicht erwünscht
Lage und Umfeld:
Das Ladenlokal liegt in zentraler Innenstadtlage, mit direktem Zugang von Klarissenstraße und Zollstraße. Die Umgebung besteht aus einer Mischung von Einzelhandelsgeschäften, Dienstleistern und Gastronomie, ergänzt durch gut frequentierte Straßen, die Laufkundschaft und Zielkunden gleichermaßen erreichen. Die historische Altstadt sowie die Nähe zu Düsseldorf und Köln machen diesen Standort besonders attraktiv für Handel und Dienstleistungen.
Highlights auf einen Blick:
•Zwei Eingänge → maximale Sichtbarkeit und Frequenz
•Zwei Büroräume und zwei WC → funktional für Personal und Verwaltung
•Sofort nutzbare Ausstellung, Lager und Bestände
•Übernahme des vorhandenen Warenbestands gegen Abstand → sofortiger Start möglich
•Flexible Nutzung → ideal für Einzelhandel, Showroom oder Dienstleister
•Provisionsfrei → Kostenersparnis für den Mieter
Ihr Vorteil:
Nutzen Sie diese einmalige Gelegenheit, Ihr Geschäft zentral in Neuss zu platzieren. Kontaktieren Sie uns noch heute für einen Besichtigungstermin!























