Referenz
Miete

Wohnen in einer der schönsten Straßen Düsseldorf’s

Standort
40476 Düsseldorf
Etage
1 von 6

Eckdaten

Kaltmiete 800 € EUR
Wohnfläche 50,00 m²
Schlafzimmer 1
Badezimmer 1
Zustand Gepflegt
Verfügbar ab 01.05.2023

Objektbeschreibung

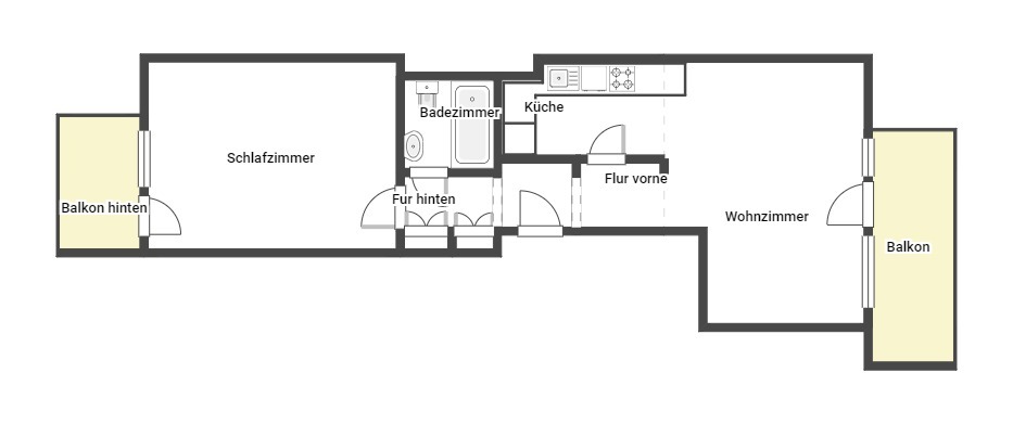
Die hier beschriebene Wohnung befindet sich in einem gepflegten Mehrparteienhaus im Stadtteil Golzheim. Sie erreichen die Wohnung im 1. Obergeschoss rechts des Hauses gelegen, bequem über einen Aufzug. Das Treppenhaus steht Ihnen ebenfalls zur Verfügung. Ausgehend von der Diele mit integriertem 4-türigen Einbauschrank, gelangen Sie in das Schlafzimmer, welches über einen Balkon verfügt und zum Hinterhaus gelegen ist. Hier schließt sich ein Badezimmer an, welches mit einer Badewanne ausgestattet ist. Im Weiteren gelangen Sie wiederum über den Flur zur Küche, welche offen in den Wohnbereich übergeht. Darin befindet sich eine Einbauküche mit Einbaugeräten. Hier grenzt ein weiterer Balkon zur Straßenseite hin an. Rundum eine sehr ansprechende Wohnung, die neben den genannten Vorteilen, durch die perfekten Anbindungen an die Stadt, sowie den fußläufig erreichbaren Rheinpark überzeugt.

Diese schönes Wohnung ist ideal für eine Single oder aber ein berufstätige Paar.

Standort
40476 Düsseldorf
Etage
1 von 6
Wohnfläche
ca. 50,00 m²
Nutzfläche
ca. 3,00 m²
Anzahl Zimmer
2
Anzahl der Schlafzimmer
1
Anzahl Badezimmer
1
Anzahl Balkone/Terrassen
2
Kaltmiete
800 €
Gesamtmiete
1.020 €
Nebenkosten
150 €
Heizkosten
in Nebenkosten enthalten
Heizkosten
70 €
Verkäufer-/Vermieterprovision
952,00 (inkl. MwSt.)
Kautions Hinweis
2400
Bezugsfrei ab
01.05.2023
Baujahr
1971
Zustand
Gepflegt

Energieeffizienzklasse

A+
A
B
C
D
E
F
G
H

Ausstattung

- Einbauküche
- 4 türiger Einbauschrank im Flur
- 2 Balkone
- Parkettboden
- Aufzug
- Dreifach Isolierverglaste Fensteranlage
- Wände- und Decken weiß gestrichen
- Zimmerabschlusstüren weiß

Balkon
Ja
Bad mit Badewanne
Ja
Einbauküche
Ja
Parkett
Ja
Personenaufzug
Ja
Keller
Ja

Lage

Golzheim grenzt im Westen an den Rhein, im Süden straßenmittig der Klever Straße an Pempelfort, im Norden südlich der Hauptachse des Nordparks an Stockum sowie im Osten im Verlauf der Roßstraße und der Danziger Straße an Derendorf. Mit den Stadtteilen Pempelfort und Derendorf ist Golzheim durch einen engen Siedlungszusammenhang verbunden.

Die Lage am Rhein, die fußläufige Nähe zum Stadtkern sowie die urbane Mischung aus großzügigen Grünanlagen, städtebaulich unterschiedlichen, eher hochwertigen Wohnvierteln und Bürostandorten machen Golzheim zu einem der attraktivsten Stadtteile der Landeshauptstadt. Nach Süden, in Richtung der Klever Straße, nimmt die Besiedlungsdichte Golzheims zu.

Ein stadtteilbezogenes Eigenleben weist Golzheim mangels eines eigenen urbanen Zentrums kaum auf; die Nahversorgung geschieht weitgehend über den gut erreichbaren zentralen Versorgungsbereich an der Nordstraße in Pempelfort, der im Hinblick auf diese Funktion über eine exzellent breite und tiefe Ausstattung verfügt. Der 24 Hektar große Rheinpark Golzheim ist – nicht nur für die Bewohner Golzheims, Pempelforts und Derendorfs – als Volkspark am Rheinufer ein bei allen Bevölkerungsgruppen beliebter und stark besuchter Treffpunkt und somit temporär ein Mittelpunkt des sozialen Lebens, besonders im Sommer und während der Freizeit.

Die Bevölkerung des Stadtteils verfügt über ein relativ hohes Bildungs- und Einkommensniveau. Arbeitslosigkeit und soziale Probleme treten unterdurchschnittlich auf.

Von besonderer Bedeutung ist Golzheim als Verwaltungs-, Messe-, Hochschul-, Konsular- und Hotelstandort. Überörtliche Zentralität hat der Stadtteil als Sitz folgender Verwaltungen: Ministerium für Klimaschutz, Umwelt, Landwirtschaft, Natur- und Verbraucherschutz des Landes Nordrhein-Westfalen, Landesbetrieb Information und Technik Nordrhein-Westfalen und Regionaldirektion Nordrhein-Westfalen der Bundesagentur für Arbeit. Golzheim ist zudem Standort der Robert Schumann Hochschule für Musik. Das Zweite Deutsche Fernsehen unterhält in Golzheim sein Landesstudio Nordrhein-Westfalen. Generalkonsulate in Golzheim haben Marokko, die Niederlande, Spanien und die Türkei, Honorarkonsulate in Golzheim haben Angola, Estland, Litauen und Mauritius. Die hohe Zahl der Arbeits- und Ausbildungsplätze, vor allem bei den Gebietskörperschaften sowie den Unternehmen der Sektoren Rechts- und Steuerberatung sowie Wirtschaftsprüfung und Wirtschaftsberatung, beschert Golzheim einen deutlichen Einpendlerüberschuss.

Hinweise

Allgemeine Hinweise:

Alle Angaben sind ohne Gewähr und basieren ausschließlich auf Informationen, die uns von unserem Auftraggeber, Bauträger und Behörden zur Verfügung gestellt wurden. Wir übernehmen keine Gewähr für die Vollständigkeit, Richtigkeit und Aktualität dieser Angaben. Die Grunderwerbsteuer, Notar- und Gerichtskosten sind vom Käufer zu tragen. Im Übrigen gelten unsere Allgemeinen Geschäftsbedingungen. Irrtum und Zwischenverkauf vorbehalten.

Wir bitten um Verständnis dafür, dass wir auch den Immobilieneigentümern gegenüber zu einem sorgfältigen Umgang mit sensiblen Daten verpflichtet sind und nähere Informationen nur weitergeben, wenn Sie bei Ihrer Anfrage Ihre vollständigen Kontaktdaten angeben.

Kaltmiete 800 €

Dragan Savic

Ihr Ansprechpartner